Home
About
Portfolio
3D Animation
Services
Extension plans
Loft conversions
Garden Office Rooms
Engineering
Permitted Development
Quote
Contact
Instant Quote
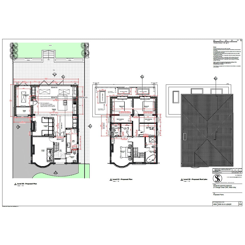
Double storey rear extension proposal
3 D - A N I M A T I O N
Request for call